На что обратить внимание при переделке
При создании минитрактора следует выбирать мотоблоки с весом конструкции не менее 100 кг. В этом случае удастся создать полноценное четырехколесное транспортное средство. Рекомендуется расширять колею колес, поскольку техника имеет высоко расположенный центр тяжести и может легко опрокидываться. Особенно это касается полноприводного минитрактора с двигателем от моблока.
Сильно увеличивать колесную базу не следует, поскольку возникнут проблемы с геометрической проходимостью и передачей крутящего момента. Использование ремней с большой длиной нежелательно, поскольку они легко соскакивают со шкивов.

Для самостоятельного выполнения работ потребуются различный инструмент и сварочное оборудование. При производстве сварочных и монтажных работ необходимо соблюдать правила техники безопасности.
Следует помнить, что единого стандарта при постройке тракторов нет. Каждый автор разрабатывает индивидуальную компоновочную схему, заимствуя решения из аналогичных конструкций.
Пошаговая инструкция по изготовлению
Самодельный минитрактор из мотоблока
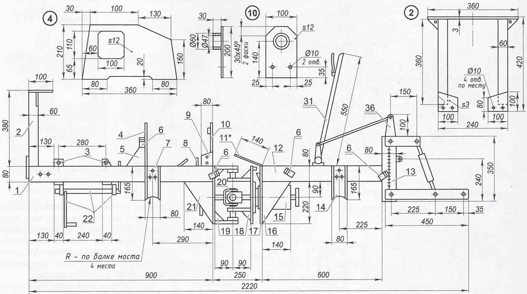
В первую очередь необходимо составить хороший чертеж. Он нужен для того, чтобы теоретически рассчитать устойчивость, тяговую мощность и другие эксплуатационные характеристики машины. Нужно учесть, что полную мощность мотоблока задействовать не удастся, т. к. после окончания работ он будет «тянуть» на себе массу рамы, дополнительной колесной пары, навесное оборудование и человека-оператора на сиденье. Из-за этого мощность, которая непосредственно идет на вспашку, окажется ниже документированных 4—6 лошадиных сил по техпаспорту.
Чертеж изготавливается в специальной программе собственноручно или с помощью профессиональных инженеров. Если сборка мини-трактора происходит путем присоединения к мотоблоку деталей из фирменного комплекта — дело упрощается, т. к. все параметры в этом случае рассчитаны производителем, а схема сборки приложена к комплекту.
Изготовление рамы
Схема рамы минитрактора
При изготовлении минитрактора из мотоблока вначале приступают к созданию рамы. Для этого потребуются детали из модификационного комплекта, либо набор стальных профилей (параметры — в соответствии с чертежом). Рекомендуется нержавейка.
Отрезки профиля, нарезанные по чертежу, вначале соединяются болтовыми соединениями, после этого в точках скрепления схватываются сваркой. Вместо профиля подойдет труба. При изготовлении рамы нужно учесть, что оптимальная высота ее бортов — 30—35 см. Рекомендуется установить поперечную балку для жесткости.
К задней части рамы приваривается фаркоп либо иное крепление для навесного оборудования, с которым планируется использовать трактор. При желании рама обшивается деревом, пластиком или другими материалами.
Сиденье и рулевой механизм
Для этого потребуются детали, которые изготовить самостоятельно невозможно. Это сиденье (подойдет любое, удобное для владельца и подходящее по размерам), рулевая колонка и шарнирный узел.
Компоновка самодельного мини-трактора
Шарнирный узел необходим для того, чтобы обеспечить мини-трактору возможность поворота. Создавать поворотное устройство для передних или задних колес слишком сложно, поэтому используют шарнир, который при вращении рулевого колеса поворачивает всю переднюю часть мотоблока — двигатель и ведущую колесную пару. При изготовлении мини-трактора на базе мотоблока основную часть — блок, двигатель и ведущие колеса — обычно располагают спереди.
Система с поворотной передней частью называется «прицеп-адаптер». В этом случае достаточно установить на раму колеса, сиденье и рулевую колонку, соединив с мотоблоком (который практически не подвергается переделке) шарнирным узлом. Она не требует монтажа сложной поворотной системы для ведущих колес и потому значительно упрощает изготовление мини-трактора.
Колеса
Дополнительная пара колес для мини-трактора на базе мотоблока берется от мотороллера либо небольшого автомобиля. Оптимальный диаметр — 12—14 дюймов (как у автомобиля Lada). Колеса меньше 12 дюймов приведут к тому, что система начнет «самозакапываться», больше 14 — усложнят управление аппаратом.
Колеса от мотороллера для мини-трактора
Крепление для мини-трактора
Для соединения между собой мотоблока с рамой используют крепление (сцепку) из подходящей трубы. Но рекомендуется приобретать качественное крепление в магазине, т. к. от него зависит надежность работы всей системы.
Элементы сцепки для мини-трактора
Минитрактор из мотоблока своими руками – порядок изготовления
Перед тем, как начать изготовление минитрактора на базе мотоблока, потребуется подготовить необходимые для работы материалы. Комплект для переделки включает:
- аппарат для сварки;
- отвертки и гаечные ключи;
- электрическая дрель и комплект различных сверл;
- болгарка и набор дисков по работе с металлом;
- комплект гаек и болтов.
Правильно собрать трактор из мотоблока помогут подходящие чертежи. В них вы найдете информацию о том, в каком порядке соединять детали и какой метод крепления подойдет для их надежного монтажа.
Переделка мотоблока в минитрактор выполняется в следующем порядке:
- Минитрактор на базе мотоблока обязательно должен быть оборудован крепкой надежной рамой. Она должна выдерживать дополнительную пару колес, плюс к этому на несущую конструкцию будет давить груз, перевозимый в тракторе. Для изготовления прочной рамы лучше всего подойдут трубы или уголки из металла. Обязательно учтите, что чем тяжелее рама, тем лучше будет сцепление минитрактора с дорогой, и тем качественнее будет выполняться вспашка грунта. Толщина стенок рамы также не имеет большое значения – главное, чтобы они не перегибались под давлением перевозимого груза, Нарезать заготовки для изготовления рамы можно при помощи болгарки. Затем все детали соединяются между собой сначала посредством болтов, после чего окончательно привариваются друг к другу. Чтобы рама стала крепче и надежнее, оборудуйте ее поперечной балкой;
- Сразу же после изготовления рамы ее можно оборудовать навесным механизмом, посредством которого маленький трактор будет оснащаться дополнительными приспособлениями. Устанавливать навеску можно, как в передней, так и в задней части несущей конструкции. Если в дальнейшем изготавливаемый минитрактор планируется использовать в паре с прицепом, то к задней части его каркаса следует приварить фаркоп;
- На следующем этапе самоделка оборудуется передними колесами. Для этого изготавливаемый мини-трактор лучше всего оснастить двумя уже готовыми ступицами с предусмотренными на них тормозами. Далее необходимо закрепить сами колеса. Для этого возьмите отрезок стальной трубы, диаметр которой подходит к передней оси. Далее закрепите к трубе ступицы колес. В центральной части трубы просверлите отверстие, которое необходимо для монтажа изделия к передней части рамы. Затем установите рулевые тяги и скорректируйте их по отношению к раме посредством червячного редуктора. После монтажа редуктора установите рулевую колонку. Ось в задней части изготавливаемого трактора монтируется через запрессованные подшипниковые втулки. Используемые колеса должны быть в диаметре не более 15 дюймов. Детали меньшего размера приведут к «зарыванию» агрегата передней частью, а колеса, размером более, существенно ухудшат маневренность минитрактора;
- На следующем этапе необходимо оборудовать минитрактор двигателем от мотоблока. Лучше всего установить мотор в передней части агрегата, так как таким образом вы улучшите баланс сельскохозяйственной машины при эксплуатации с загруженным прицепом. Для установки мотора обустройте надежную систему крепления. При монтаже мотора не забывайте, что вал отбора мощности необходимо закрепить соосно шкиву, расположенному на заднем мосте мини-трактора. Усилие на колеса должно проходить при помощи ременной передачи. Более детально о переделке мотоблока в минитрактор расскажет видео.
Изготовленный своими руками трактор останется оборудовать надежной тормозной системой и качественным гидрораспределителем, который необходим для исправной эксплуатации агрегата с навесным оборудованием.
Необходимые расходные материалы, детали и запчасти
Чтобы понять, что необходимо для изготовления, давайте рассмотрим основные элементы готового минитрактора:
- Рама (производится из любого металлопроката)
- Устройство для совершения поворотов
- Любые тормоза
- Сиденье
- Металл для обшивки кузова
- Сцепка, которая служит для подключения другого оборудования.
Все эти составляющие можно купить в местах разборки автомобилей или на складах металлолома. Но к их выбору следует подойти ответственно. Зачастую они не совсем новые, следовательно их нужно тщательно осмотреть на целостность и дефекты. Ведь здесь нельзя допустить использование повреждённых комплектующих. В противном случае всё устройство будет работать не правильно.
Преимущества и недостатки самодельной конструкции
В условиях кризиса, определяющим моментом, который влияет на многие сферы жизни и промышленности, является вопрос экономии денежных средств. Именно данное обстоятельство и толкает многих энтузиастов на самостоятельное изготовление не только минитракторов, но и прочей сельскохозяйственной техники.
Современные зернодробилки достаточно компактные и энергоёмкие, они легки в применении и радуют своих хозяев. Зернодробилка бытовая — идеальна по соотношению цены и качества.
В последнее десятилетие среди дачников и огородников стал известным аппарат – опрыскиватель, имеющий название «Жук». Здесь вся информация об этом прекрасном аппарате.
Данный факт, во многом, становится определяющим, особенно для сельской местности, где уже давно нет занятости, а, как следствие этого, и денег. Все, что есть у людей, живущих в деревнях и селах, это их личное хозяйство, которое и кормит их на протяжении всего года.
READ Замена Масла В Редукторе Мотоблока Салют
Поэтому, самодельные агрегаты в сельской местности будут популярны еще долгое время.
Помимо очевидной экономии денежных средств, самостоятельная сборка имеет целый ряд преимуществ:
- За счет своих компактных габаритов, самодельный агрегат способен производить работу на довольно небольших площадях. Учитывая, что большинство частных огородов небольшие, данное обстоятельство становится важным, ведь применение крупногабаритной техники, в данном случае, нецелесообразно.
- Быстро достигаемая окупаемость – буквально за один сезон. Это является следствием той экономии на комплектующих, которая описывалась ранее.
- Достаточно неплохие рабочие показатели, которые демонстрирует самодельный агрегат.
Однако, как бы может этого и не хотелось, но у самодельных минитракторов есть и определенные недостатки, которые необходимо указать:
- При сборке присутствует определенная проблема поиска нужных деталей и запчастей.
- Следствием предыдущей проблемы является вопрос ремонта, ведь при выходе из строя определенной детали, найти ее будет довольно сложно.
- Самостоятельная сборка предполагает наличие определенных знаний в технике, а также умения работать со сварочным аппаратом и токарным станком. Иными словами, сборка подходит далеко не каждому.
- Ввиду того, что полноприводный самодельный минитрактор изготавливается, в основном, из старых комплектующих, это может отразиться на частоте поломок оборудования.
Как мы видим, минусов достаточно много. Но, на бытовом уровне, самостоятельная сборка становится чуть ли не единственной альтернативой, вследствие своей относительной дешевизны.
Минитрактор из мотоблока Салют
Изделия под маркой Салют оснащаются двигателями марок Briggs&Stratton, Kohler Courage, Honda и другими. Мощность установок составляет 6-7,5 л.с. Агрегаты оснащаются механической двухскоростной коробкой с реверсом и дополнительной понижающей передачей. Крутящий момент передается клиноременной передачей на механический редуктор, связанный с ведущими полуосями. В кинематической схеме применяются два ремня, что снижает риск проскальзывания под нагрузкой, увеличивает срок службы и передаваемый крутящий момент.

Благодаря особенностям трансмиссии Салюты часто применяются в качестве исходных материалов для постройки тракторов с приводом на два или четыре колеса. Перед тем как переделать мотоблок в минитрактор своими руками, владелец может приобрести готовый комплект деталей для переоборудования.
При модернизации Салюта в минитрактор рекомендуется:
- расширить колею передней оси до 1200 мм (для улучшения устойчивости);
- увеличить колею задней базовой оси путем установки самодельных или фабричных полуосей;
- в качестве ведущих колес использовать штатные покрышки.
Основные рекомендации
Вначале необходимо сориентироваться с выбором подходящей модификации агрегата. Он должен обладать необходимым резервом ресурса, чтобы обеспечить требуемую тягу для возделывания почвы посредством навесных приспособлений – окучника, плуга и тому подобное.

Чтобы узнать, что потребуется для сотворения полновесного мини-трактора, необходимо для начала рассмотреть его базовые составляющие.
- Шасси. Выполняется из подручного металлического проката.
- Поворотное устройство.
- Простые дисковые тормоза.
- Сиденье и детали кузова.
- Сцепное устройство для монтажа навесного снаряжения, система рычагов для контроля за ним.

Как сделать раму
После подготовки инструментов и комплектующих, необходимых для создания минитрактора, приступают к «перекройке» рамы мотоблока, чтобы, в соответствии с чертежом, приспособить её под дополнительную пару колёс. Платформу будущей самодельной машины можно сделать цельнометаллической или переломной с использованием швеллеров или профильных металлических труб. Продольные и поперечные лонжероны сделать несложно – их нарезают болгаркой и соединяют электросваркой или крепёжными элементами. Для большей надёжности болтовые соединения комбинируют с дополнительной проваркой швов.

При трансформации культиватора в минитрактор часто используют именно переломку, состоящую из двух независимых полурам, соединенных между собой при помощи шарниров. Благодаря такой конструкции все четыре колеса трактора почти всегда контактируют с грунтом, и практически не происходит их вывешивание при эксплуатации самоделки по неровной поверхности или скользкой дороге. Это позволяет повысить устойчивость минитрактора из мотоблока, улучшить его маневренность и проходимость при осуществлении пахотных и транспортных работ.
К переднему или заднему участку подготовленной рамы монтируют по схеме навесное устройство, которое позволит трактору сделать возможной работу со вспомогательными устройствами. Можно сразу сзади приварить фаркоп для буксировки прицепа — это ещё больше расширить функциональные возможности самодельного мототрактора, полученного из мотоблока.
Как сконструировать минитрактор из мотоблока Зубр?
Итак, вам понадобятся такие дополнительные элементы:
- пара колес. Подойдут колеса с легкового автомобиля;
- гидравлическая система. Нужна для монтирования и работы с любым навесным оборудованием;
- система торможения;
- руль.
Также вам нужны некоторые инструменты, которые есть в каждой мастерской любого мужчины. Единственная сложность может возникнуть со сварочным аппаратом, который есть не у всех.
Перед началом работ вам нужно не просто найти чертежи, но и переделать их именно под ваш мотоблок. Без этого этапа вы можете столкнуться со сложностями в процессе работы.
Рама
Первым делом вы должны сделать раму, на которой и будут крепиться все элементы. Для этого вам нужна труба и уголки
Диаметр трубы может быть любым, важно лишь, чтобы она была крайне прочной. Труба режется болгаркой, соединяется уголками или сваривается. Чтобы конструкция была еще более прочной, вы можете прикрепить поперечную балку для дополнительного жесткости и устойчивости
Чтобы конструкция была еще более прочной, вы можете прикрепить поперечную балку для дополнительного жесткости и устойчивости.
Ходовая часть
Для крепления колес вы можете приобрести две заводские ступицы с тормозами. Все делается таким образом: вам нужно взять отрезок трубы, соответствующий ширине передней оси. К трубе прикрепите ступицы. Посередине нужно высверлить дыру насквозь, через которое осуществить крепеж к передней раме. После этого прикрепляются рулевые тяги через червячный редуктор. Затем крепится рулевая колонка.

Заднюю ось нужно прикреплять на запрессованные во втулки подшипники. На ось крепится шкив, который передает крутящий момент от мотора. Колеса, как уже говорилось выше, могут быть от легковушки или снятые со старого мотоблока.
Мотор
Обычно двигатель крепится на фронтовую часть рамы, что обеспечивает нормальный баланс минитрактора во время активной работы на земле. В месте, где крепится мотор, конструируется система крепления. Важный момент: вал отбора мощности должен располагаться на одной оси со шкивом на заднем мосту техники. Ременная передача необходима для передачи усилия. Крепление мотора лучше делать плавающим, что обеспечит более облегченную регулировку и натяжение ремней.
Вспомогательное оборудование
После того, как самая важная часть работ выполнена, вам необходимо прикрепить тормозную систему и гидрораспределитель для работы с навесным инструментарием. Если вы будете не просто работать на своем участке, но и передвигаться по трассе, тогда вам нужно купить и установить фары и габаритные огни.
Чтобы минитрактор имел эстетичный и законченный вид, можно установить крышу, обеспечивающую более комфортную работу водителю. В целом, вы можете оборудовать так, как вы этого хотите.
После того, как переоборудование будет закончено, вам необходимо провести обкатку, протестировать каждую систему, а потом только приступать к непосредственной работе в огороде или поле.
Конечно, ваша техника по характеристикам не будет такой, как заводская, но при этом вы сэкономите средства и сделаете своими руками такой минитрактор, который будет отвечать всем вашим требованиям.
Переоборудование
Создание самоделки необходимо начинать с изучения кинематической схемы и чертежей, а также с подготовки соответствующих узлов, материалов, деталей и инструментов. Можно подготовить схему самостоятельно или взять за образец этот пример.

Кинематическая схема мини-трактора
Если чувствуете себя не очень уверенно в вопросах переделок и переломок, можно приобрести специальный комплект, в котором имеются все нужные детали для переоборудования мотоблока, а именно:
- задняя навеска с ручным подъемным механизмом;
- крылья, сидения, подножки и педали;
- передняя балка, тормозные диски, колесные ступицы;
- рама с необходимыми креплениями для двигателя;
- рулевое управление с тягами;
- рычаги выключения блокировки полуосей.
Отечественный предлагает наборы для переоборудования мотоблока в минитрактор с различными вариантами комплектации – базовые, гидравлика, тормозная система. Цена базового комплекта вполне приемлема — в рамках 7 тыс.грн.

Набор для переоборудования мотоблока в минитрактор
Обычно при сборе самодельного трактора при наличии комплекта деталей даже у начинающих механиков особых трудностей не возникает. Кроме того, сегодня во многих городах работают мастерские, специализирующиеся на переделке мотоблоков «Салют» в минитракторы.
Естественно, данный вариант не подойдет для тех, кто хочет сделать уникальный образец и существенно сэкономить, например, переломку 4х4.
Важные конструктивные моменты при переоборудовании:
- Посадка водителя на технику поднимает ее центр тяжести, а это означает, что, во избежание опрокидывания на крутом повороте, необходимо сделать более широкой вторую ведомую ось – не менее 1-1,2м.
- Расширение колесной базы мотоблока. Сегодня вы можете купить готовые втулки, установкой которых на переднем ведущем вале мотоблока увеличивается расстояние между колесами, поэтому можно спокойно обойтись без услуг токаря.
- Если дифференциал отсутствует, то вопрос повышения маневренности самоделки решается установкой блокирующих поворотных удлинителей, одновременно этим удастся увеличить колесную базу.
Инструкция по сборке минитрактора
После тщательного изучения схем и чертежей нужно подготовить комплект материалов и оборудования для работы. В него входят:
- сварочный аппарат;
- набор ключей и отвёрток, гаек и болтов;
- болгарка и диски к ней;
- электородрель с комплектующими свёрлами.
Монтаж минитрактора можно начинать. Без соответствующих чертежей этого делать не стоит, потому что в них описан не только порядок сборки, но и указаны индивидуальные особенности креплений, соединения деталей на выбранной модели. Общая схема реконструкции такова:
- изготовление рамы, которая должна будет впоследствии выдержать саму конструкцию и перевозимый груз;
- закрепление на тракторе навески для дополнительных приспособлений (если не планируется в модели прицеп, то можно устанавливать её как впереди, так и в задней части; для прицепа сзади каркаса надо приварить фаркоп – крюк для сцепки с прицепом);
- установка передних колес с тормозной системой и рулевым управлением;
- оснащение минитрактора двигателем от мотоплуга в передней части конструкции для надёжного баланса при перевозке грузов.
Важно! Диаметр передних колёс должен быть равен 38-40 сантиметрам. При меньшем размере трактор будет наклоняться вперёд, при большем – уменьшится его маневренность. Это общая схема сборки и реконструкции миниатюрного трактора с использованием двигателя от мотоблока
У каждого из них есть свои особенности комплектования, они обязательно должны быть использованы в процессе самостоятельной переделки моделей
Это общая схема сборки и реконструкции миниатюрного трактора с использованием двигателя от мотоблока. У каждого из них есть свои особенности комплектования, они обязательно должны быть использованы в процессе самостоятельной переделки моделей.
Агрегатирование
Элементы агрегата сопрягают болтами либо электросваркой
Порой допускается комбинированное соединение элементов.
Очень важно правильно разместить сидение, снятое с легкового автомобиля. Дальнейший этап – установка двигателя
Чтобы добротно зафиксировать двигатель на шасси, потребуется использовать специализированную плиту с прорезями.
Дальше прокладываются механическая и электрическая системы. Чтобы грамотно выполнить данную работу, сравнивайте свою электросхему со схемой фабричных агрегатов.
Затем обшиваем и обустраиваем кузов и совмещаем его с двигателем.

О том, как сделать мини-трактор из мотоблока «Нева», смотрите в следующем видео.
https://youtube.com/watch?v=coW2Ep5aDLU
Как правильно переделать мотоблок в трактор?
Чтобы успешно собрать самодельный трактор из мотоблока своими руками, нужно четко знать, что для этого нужно и как сделать все правильно. Поэтому до начала работ нужно составить подробную схему превращения и начертить чертежи собираемых узлов и агрегатов (или одолжить их у знакомых, которые уже проделали такую работу раньше). И только досконально разобравшись в схеме и чертежах, можно начинать работы по собственно переделке.
Рама
Чтобы сделать 4-х колесный трактор своими руками из 2-х колесного мотоблока, первым делом нужно изготовить раму. В зависимости от предназначения будущего трактора рама может быть:
- Сплошная, если трактор нужен преимущественно для сельхозработ;
- Ломаная, если трактору придется часто двигаться по труднодоступным местам.
Раму лучше всего делать с задним адаптером, чтобы можно было прицеплять к самодельному трактору прицеп или другое навесное оборудование.
Сначала определяются размеры будущей рамы, затем режутся заготовки нужного размера, и сваркой или болтами соединяются в единую конструкцию. Для большей прочности можно установить на раму дополнительную поперечную балку.
При изготовлении рамы нужно не забыть смонтировать на ней навеску для агрегатирования с навесным оборудованием. Ее можно монтировать как спереди, так и сзади. Также сзади обязательно нужно не забыть приварить фаркоп, иначе на минитрактор невозможно будет прицепить прицеп.
Чтобы сделать самодельную раму, нужно болгаркой нарезать из стальных труб и листов заготовки соответствующего размера, а затем сварить их в единую конструкцию. Для большей надежности посредине рамы можно приварить дополнительную поперечную стальную балку.
Колеса
Закончив с рамой, переходят к установке колес. Чтобы их установить, понадобятся две ступицы с тормозами и кусок металлической трубы, по ширине подходящий к передней оси. По центру трубы делается сквозное отверстие, через которое ее крепят к передней раме, а по ее бокам крепятся колесные ступицы. Затем монтируются рулевые тяги, закрепляется червячный редуктор и устанавливается рулевая колонка.
Для передачи крутящего момента от двигателя на заднюю ось, установленную на запрессованные во втулки подшипники, устанавливается шкив. На обе оси монтируются колеса от легковушки или к 2 «родным» колесам мотоблока нужно приобрести еще одну пару.
Сначала на раму крепится передняя и задняя оси, на которые устанавливаются колеса. Обычно на задней оси оставляют «родные» колеса мотоблока, а на переднюю надевают колеса от легковушки, хотя можно и от другой сельскохозяйственной техники.
Двигатель
Двигатель крепят спереди, чтобы при агрегатировании с прицепным оборудованием сохранять нужный баланс конструкции. А вот вал отбора мощности в самоделке расположен на заднем мосту минитрактора. В действие он приводится через ременную передачу. На заключительном этапе сборки устанавливают тормоза и гидрораспределитель.
Затем на раму крепятся все остальные важные узлы и агрегаты: руль, трансмиссия, педали, тормоз, сидение для оператора и т.д. При желании можно установить фары и габаритные огни, а также навес от солнца.


















































